LOG IN:
Username:
Password:
Forgot Password?
Join Now
Forums
Gallery
Members
Registry
About
ChuckVA
>
1991 Ford Bronco
>
Rear skidplate & Bumper
> winchmount1.jpg
File 27 of 53
Prev
|
Next
Share This
Url
Tag
Img
Thumb
Flag as inappropriate
winchmount1.jpg | Hits: 587 | Posted on: 3/13/06 |
View Low-Res
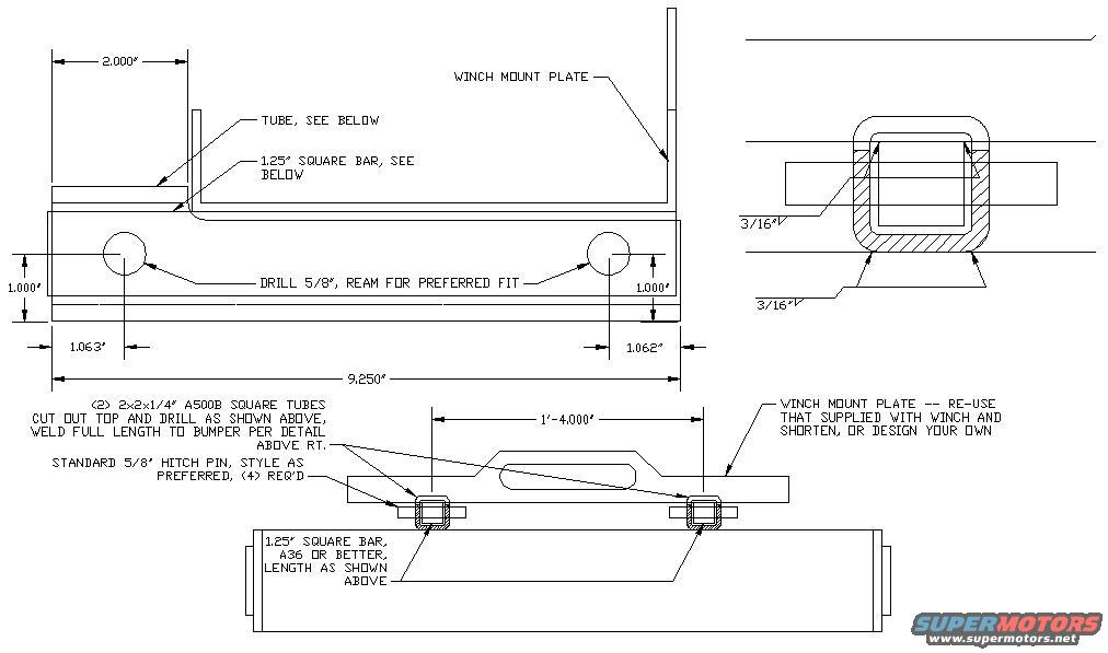
Design for a simple removable winch mount, much stronger than receiver mount and without the clearance issues.