LOG IN:
Username:
Password:
Forgot Password?
Join Now
Articles
Clubs
Forums
Gallery
Members
Registry
Services
Drock96marquis
>
1996 Mercury Grand Marquis
>
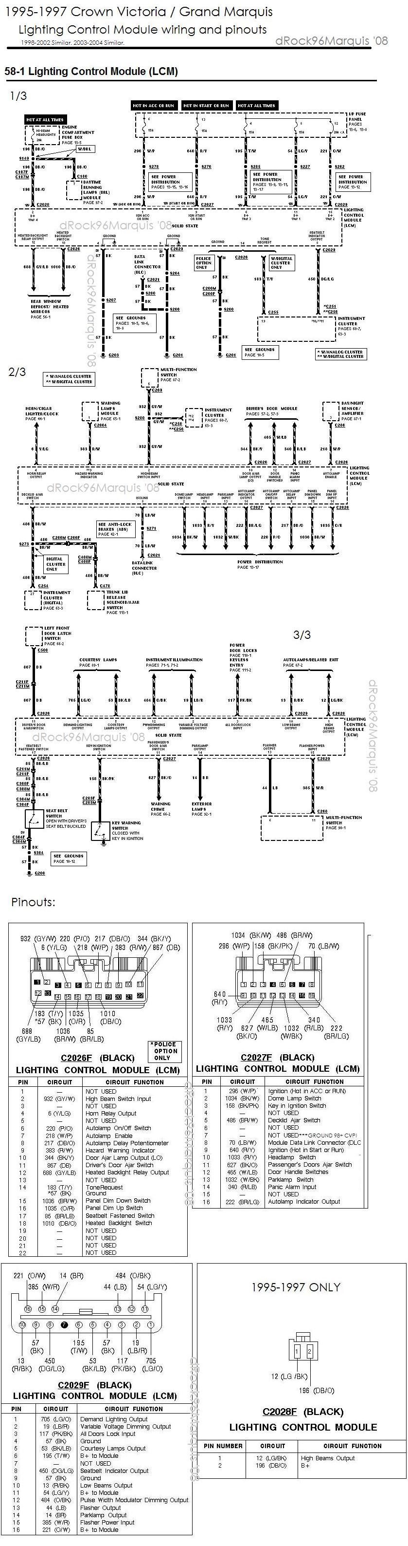
Panther LCM / lighting circuits and pinouts
> 9597cvgmqlcm.jpg
File 16 of 47
Prev
|
Next
Share This
Url
Tag
Img
Thumb
Flag as inappropriate
9597cvgmqlcm.jpg | Hits: 2548 | Posted on: 1/29/08 |
View Low-Res
'95-'97 CV/GMQ LCM wiring and pinouts