File 68 of 114
Prev | Next

Url
Tag
Img
Thumb


powerwindow95evtm.jpg | Hits: 10206 | Posted on: 12/4/03 | View Low-Res

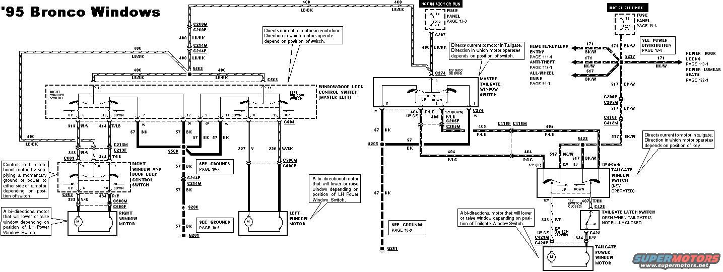
95 EVTM Power Windows
IF THE IMAGE IS TOO SMALL, click it.

'80-97 similar.

The notation for the R window switch is inaccurate: the switch actually provides a CONTINUOUS ground to both motor wires, and momentarily switches one hot to drive the motor.
The one that gets switched determines the motor's direction.

For more info on tailgate operation, see:
http://www.supermotors.net/vehicles/registry/2742/12689
About SuperMotors | Contact Us | FAQ/Help | Legal
Copyright © 1998-2022 Web Design Solutions, Inc.
All rights reserved. Duplication & reproduction is strictly prohibited.
SuperMotors.net v5.0.2 ChangeLog