LOG IN:
Username:
Password:
Forgot Password?
Join Now
Articles
Clubs
Forums
Gallery
Members
Registry
Services
Drock96marquis
>
1996 Mercury Grand Marquis
>
Panther LCM / lighting circuits and pinouts
> 0304cvgmqmmlcm.jpg
File 1 of 47
Prev
|
Next
Share This
Url
Tag
Img
Thumb
Flag as inappropriate
0304cvgmqmmlcm.jpg | Hits: 4866 | Posted on: 1/10/08 |
View Low-Res
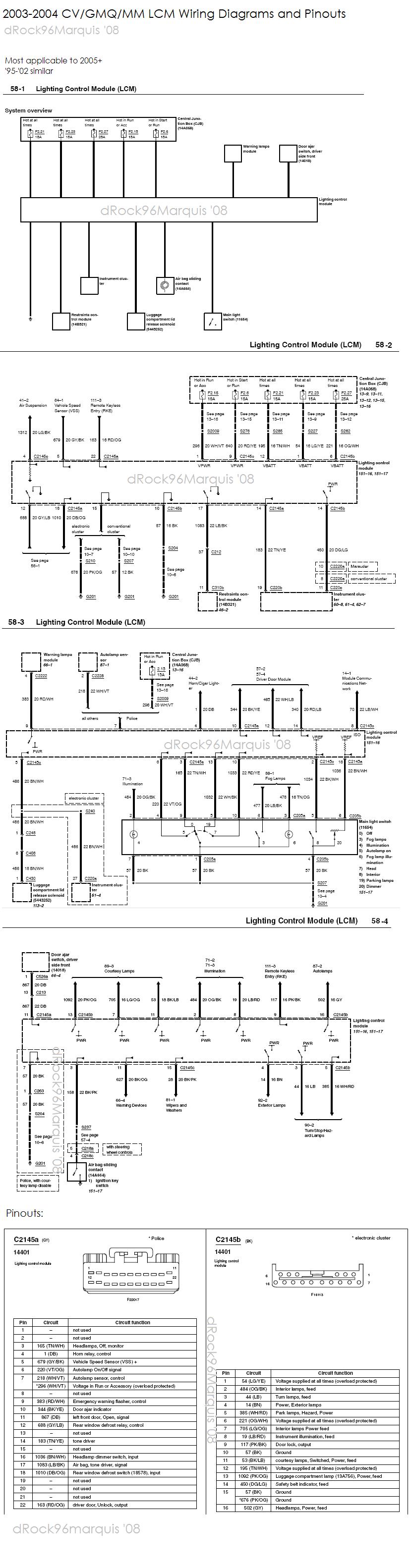
2003-2004 CV/GMQ/MM LCM diagrams and pinouts
05+ similar
95-02 similar